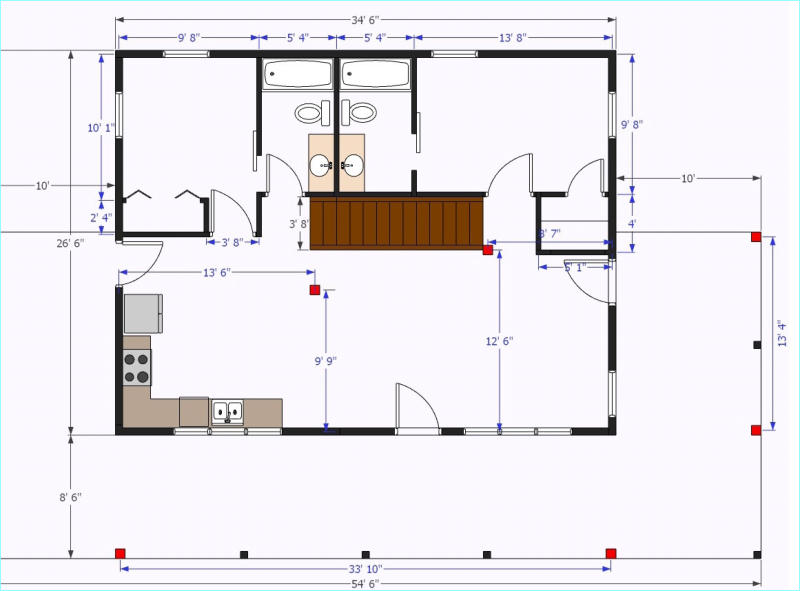
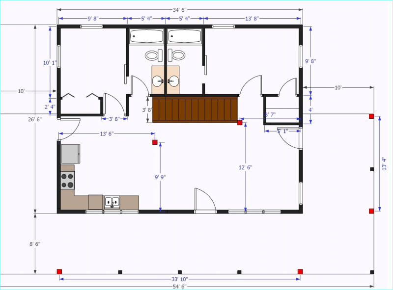
AW-16942277428 1280 sq ft Pioneer Cabin Kit

Pioneer Cabin Kit

1280 square feet

This charming 1280 sq ft cabin kit is perfect for creating memories with family and friends. Imagine relaxing on the wrap-around porch, sipping coffee and breathing in the fresh air. Step inside to the main floor's spacious 880 sq ft open-concept living area. It's bright and airy, ideal for entertaining or simply chilling out. The kitchen flows seamlessly into the living space, making it easy to connect with everyone. Upstairs, you'll find a versatile 400 sq ft loft – perfect for a bedroom, playroom, or even a home office! Two full baths on the first floor offer convenience, and there's even space to add another bedroom in the loft if your family grows. The Pioneer Cabin is a fantastic choice for families or anyone seeking a comfortable and affordable escape. This charming cabin offers all the essentials for creating a happy home!
Schutt Log Homes & Mill Works      816-506-5713 Pioneer Cabin Kit Pioneer Cabin Kit Pioneer Cabin Kit Pioneer Cabin Kit Pioneer Cabin Kit Pioneer Cabin Kit Pioneer Cabin Kit Pioneer Cabin Kit
Schutt Log Homes & Mill Works