AW-16942277428 Chalet Cabin Kit- 1280 sq ft

Chalet Cabin Kit- 1280 square feet

Schutt Log Homes & Mill Works      816-506-5713
Schutt Log Homes & Mill Works
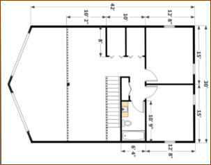
Option C 1280 sf
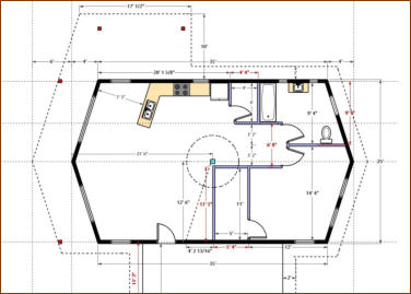
Option D 1280 sf
Option E 1280 sf
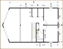
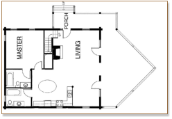
This charming 1280 sq ft log cabin kit is a popular choice for its adaptability and rustic elegance. Boasting 1.5 stories, the Chalet kit offers a comfortable 2-bedroom, 1-bathroom layout. Easily modify it to a 3-bedroom, 2-bathroom cabin to suit your needs. Extend your living space and create a dramatic flair by adding an optional prow front, adding an additional 6 feet to the living room. Vaulted shiplap ceilings with exposed timber rafters create a cozy and inviting atmosphere. Choose from a slab, basement, or crawl space foundation to fit your building site and preferences. The Chalet Oak log cabin kit is highly customizable to fit your dream log cabin vision!
 Chalet  option A
Option A 1280 sf
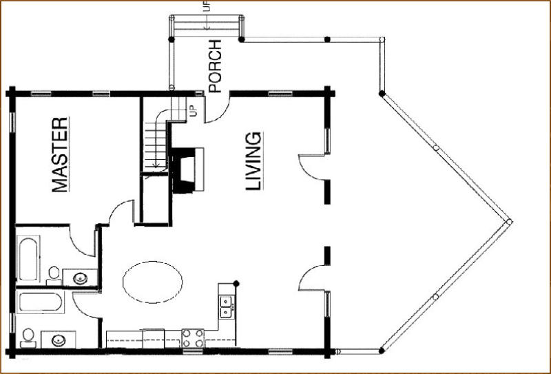
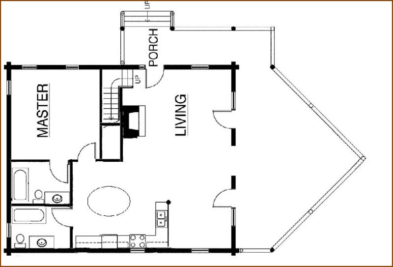
Chalet Option B
6’ Knee Wall option
Option B 1280 sqft

Chalet Cabin Kit- 1280 square feet

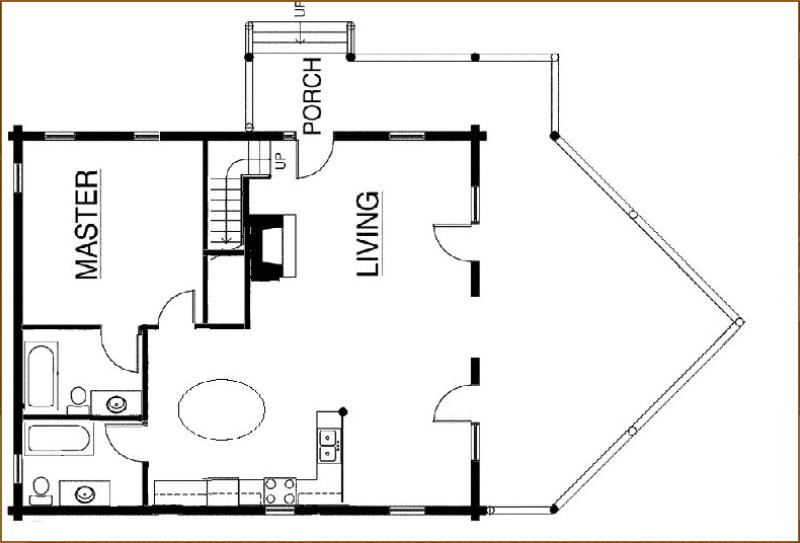
This charming 1280 sq ft Oak log cabin kit is a popular choice for its adaptability and rustic elegance. Boasting 1.5 stories, the Chalet kit offers a comfortable 2- bedroom, 1-bathroom layout. Easily modify it to a 3-bedroom, 2-bathroom cabin to suit your needs. Extend your living space and create a dramatic flair by adding an optional prow front, adding an additional 6 feet to the living room. Vaulted shiplap ceilings with exposed timber rafters create a cozy and inviting atmosphere. Choose from a slab, basement, or crawl space foundation to fit your building site and preferences. This cabin kit is highly customizable to fit your dream log cabin vision!
Schutt Log Homes & Mill Works      816-506-5713
Schutt Log Homes & Mill Works
 Chalet  option A Chalet Option B
6’ Knee Wall option
Option B 1280 sq ft
Option C 1280 sqft
Option D 1280 sf
Option E 1280 sq ft
Option A 1280 sq ft