AW-16942277428 Chalet cabin kit- 2000 sq ft
Schutt Log Homes & Mill Works      816-506-5713 2000 Chalet Cabin Elevation 1st Floor Plan 2nd Floor Plan
Schutt Log Homes & Mill Works
Option A 2000 sf
Option B 2000 sf
Option C 2000 sf
Option D 2000 sf

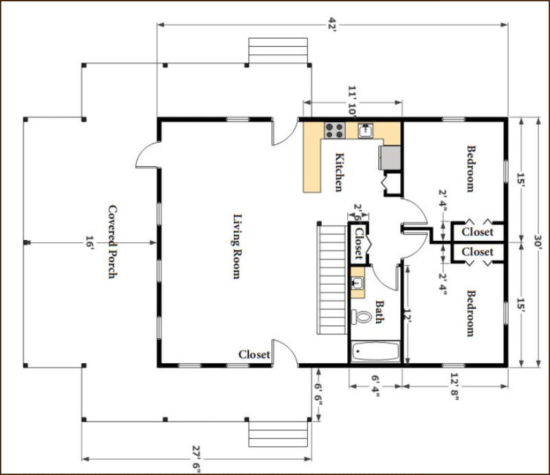
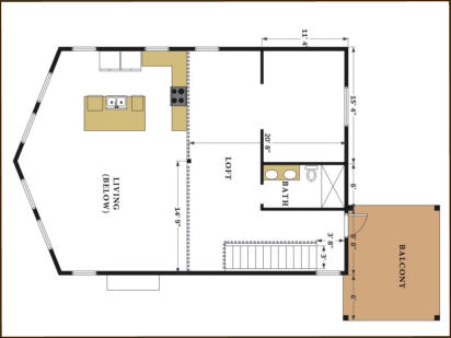
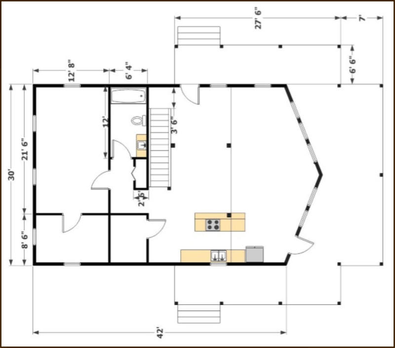
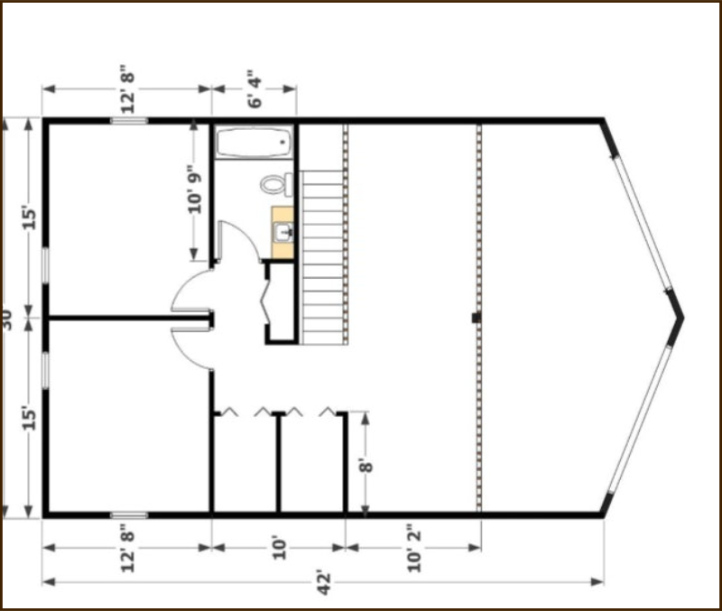
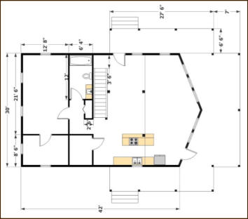
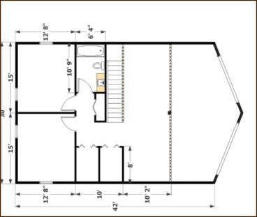
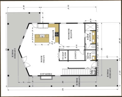
Chalet Cabin Kit- 2000 square feet

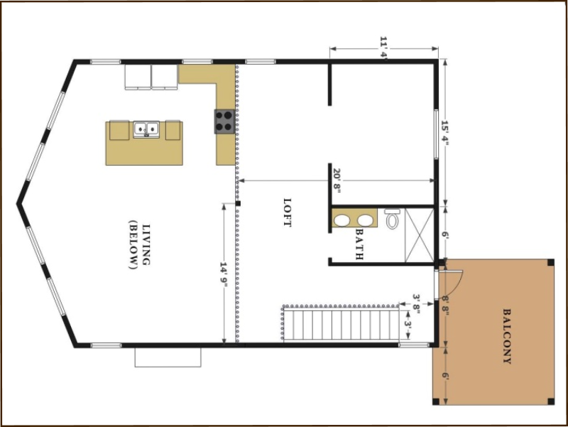
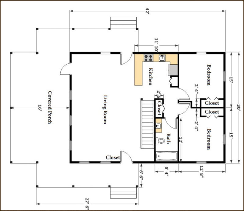
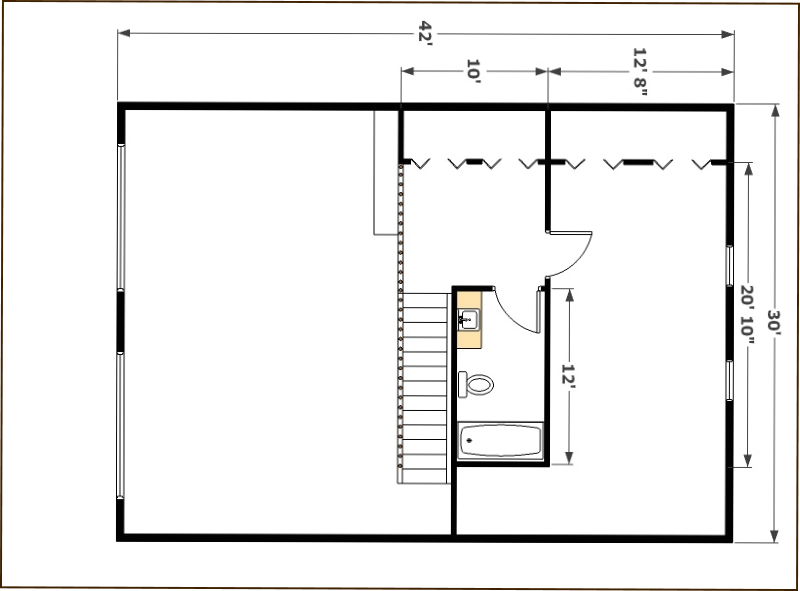
The 2000 sq ft Chalet Oak log cabin kit is designed to offer a spacious yet cozy log home experience. The cabin has a 42' x 30' footprint and features a covered porch, providing ample outdoor space for relaxation. This model emphasizes natural light and an airy atmosphere with numerous windows. The interior maintains a rustic charm with exposed oak timbers and log walls. The kit's floor plan is versatile, allowing for easy modifications to add or enlarge rooms according to your needs. It includes vaulted shiplap ceilings with exposed timber rafters, enhancing the cabin's warm and rustic aesthetic. The cabin can be built on a slab foundation, basement, or crawl space, accommodating various site conditions.
Schutt Log Homes & Mill Works      816-506-5713
Schutt Log Homes & Mill Works
2000 Chalet Cabin Elevation 1st Floor Plan 2nd Floor Plan
Option A 2000 sf
Option B 2000 sf
Option C 2000 sf
Option D 2000 sf

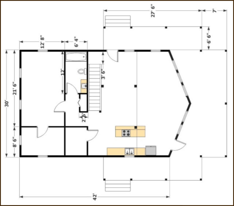
Chalet Cabin Kit- 2000 square feet

The 2000 sq ft Chalet Oak log cabin kit is designed to offer a spacious yet cozy log home experience. The cabin has a 42' x 30' footprint and features a covered porch, providing ample outdoor space for relaxation. This model emphasizes natural light and an airy atmosphere with numerous windows. The interior maintains a rustic charm with exposed oak timbers and log walls. The kit's floor plan is versatile, allowing for easy modifications to add or enlarge rooms according to your needs. It includes vaulted shiplap ceilings with exposed timber rafters, enhancing the cabin's warm and rustic aesthetic. The cabin can be built on a slab foundation, basement, or crawl space, accommodating various site conditions.