AW-16942277428
Oak Ridge Hybrid Home Kit
Schutt Log Homes
& Mill Works
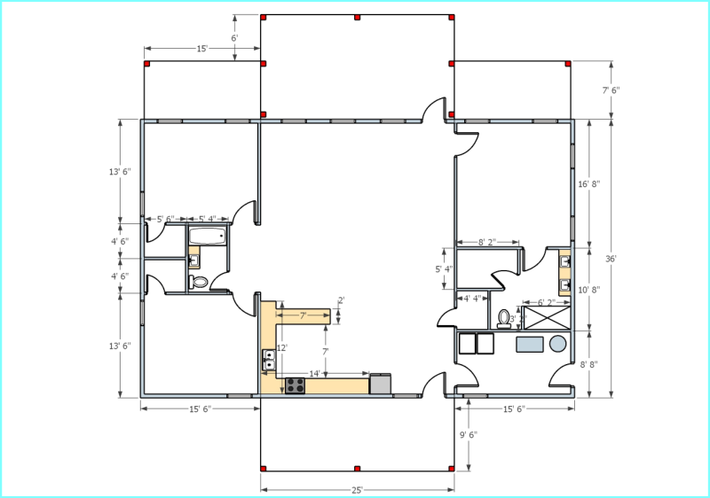
Hybrid Timber Frame House- Option 1- 1980 sq ft
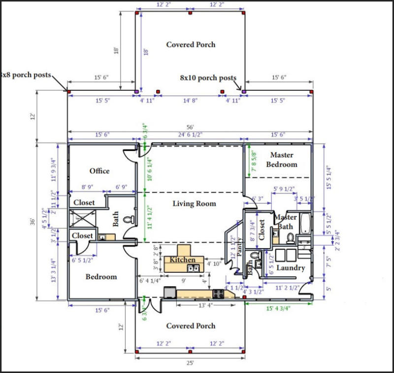
Hybrid Timber Frame House- Option 2- 2016 sq ft-
Hybrid Timber Frame House- Option 3
Main floor- 2400sq ft
Loft- 1000 sq ft
2 Car Garage
Hybrid Timber Frame House- Option 4
2900 sq ft
Loft
Oakridge Video #1
Oakridge Video #2
Oakridge Video #3
Oakridge Video #4
Oakridge Video #5
Home
Oak cabin kits
Hybrid Timber Frame
Basic Wood Home Kit
Barn-House Kits
Barn kits
Farm and garden kits
About our manual
Financing
Find A Builder
Construction gallery
Blogs and Videos
What's included
Shipping
Contact Us
Schutt Log Homes
& Mill Works
Hybrid Timber Frame House- Option 1- 1980 sq ft
Hybrid Timber Frame House- Option 2- 2016 sq ft-
Hybrid Timber Frame House- Option 3
Main floor- 2400sq ft
Loft- 1000 sq ft
2 Car Garage
Hybrid Timber Frame House- Option 3
Main floor- 2400sq ft
Loft- 1000 sq ft
2 Car Garage
Oakridge Video #1
Oakridge Video # 2
Oakridge video #3
Oakridge Video #4
Oakridge Video #5
Home
Oak Log Cabin Kits
Hybrid Timber Frame
Basic Wood Home Kit
Barn-House Kits
Barn Kits
Farm and Garden Kits
About Our Manual
Financing
Find A Builder
Construction Gallery
What's Included
Blogs and Videos
Shipping
Contact Us