AW-16942277428 Lake House Cabin Kit- 1000 sq ft
Schutt Log Homes & Mill Works      816-506-5713

Lake House Cabin Kit

1000 square feet

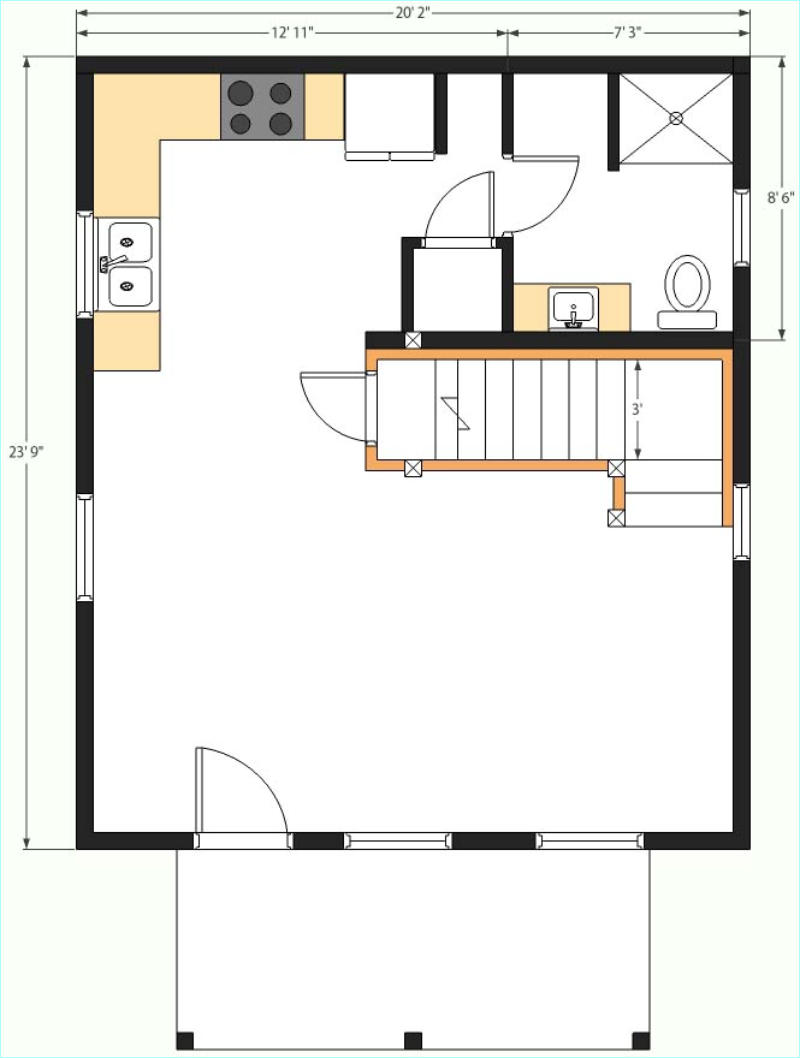
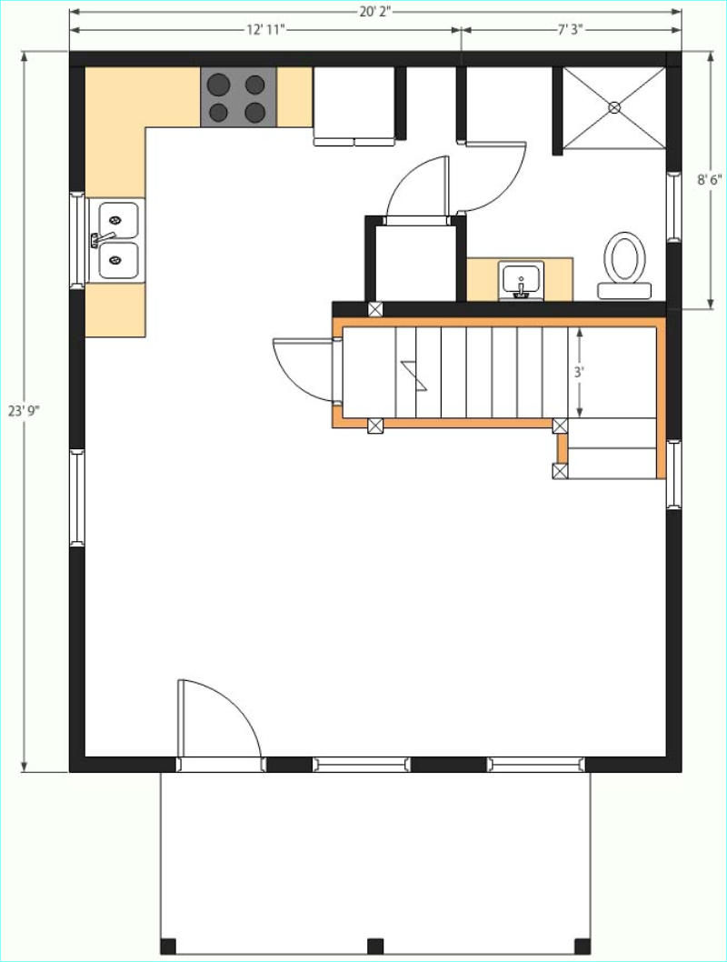
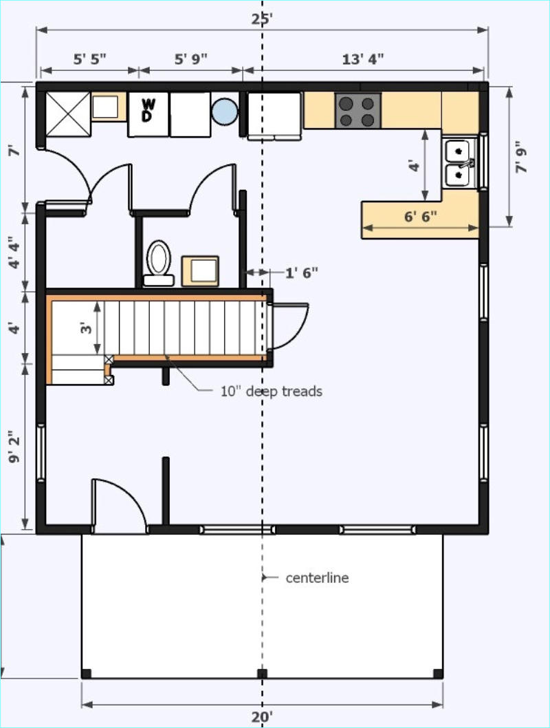
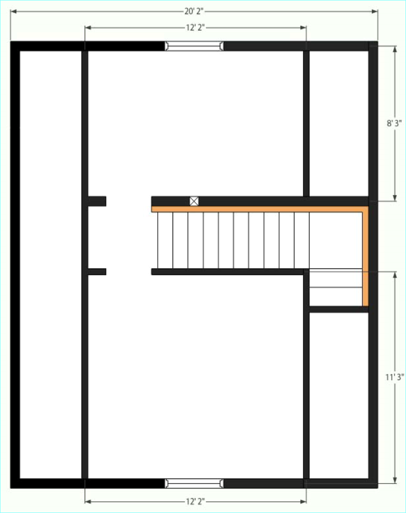
The Lake House Kit offers a charming two-story cabin ideal for lakefront living, vacations, or a starter home. Its compact 1,000 square feet makes it economical to heat, cool, and maintain, ensuring year-round comfort without breaking the bank. Despite its footprint, the open floor plan creates a feeling of spaciousness. Imagine cozy nights spent gathered around a fireplace (not included in the kit) in the expansive living area. The Lake House Kit offers two floor plan options to suit your needs. Or, unleash your creativity and customize the layout to create your dream space. Featuring a covered front porch and a classic pitched roof, the Lake House Kit boasts a timeless look that blends seamlessly with natural surroundings. Choose from pier, slab, or basement foundation options to suit your building site and preferences. Whether you envision a relaxing retreat, a getaway cabin, or a starter home with room to grow, the Lake House Kit offers the perfect foundation for your log home dreams.
Schutt Log Homes & Mill Works
Lake House Kit Lake House Kit Lake House Kit Lake House Kit Lake House Kit Lake House Kit
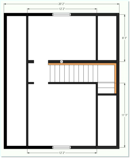
Option B 1000 sq ft
Option A 770 sq ft
Schutt Log Homes & Mill Works

Lake House Cabin Kit

1000 square feet

The Lake House Kit offers a charming two-story cabin ideal for lakefront living, vacations, or a starter home. Its compact 1,000 square feet makes it economical to heat, cool, and maintain, ensuring year-round comfort without breaking the bank. Despite its footprint, the open floor plan creates a feeling of spaciousness. Imagine cozy nights spent gathered around a fireplace (not included in the kit) in the expansive living area. The Lake House Kit offers two floor plan options to suit your needs. Or, unleash your creativity and customize the layout to create your dream space. Featuring a covered front porch and a classic pitched roof, the Lake House Kit boasts a timeless look that blends seamlessly with natural surroundings. Choose from pier, slab, or basement foundation options to suit your building site and preferences. Whether you envision a relaxing retreat, a getaway cabin, or a starter home with room to grow, the Lake House Kit offers the perfect foundation for your log home dreams.
Schutt Log Homes & Mill Works      816-506-5713
Lake House Kit Lake House Kit Lake House Kit
Option A 770 sq ft
Lake House Kit Lake House Kit Lake House Kit
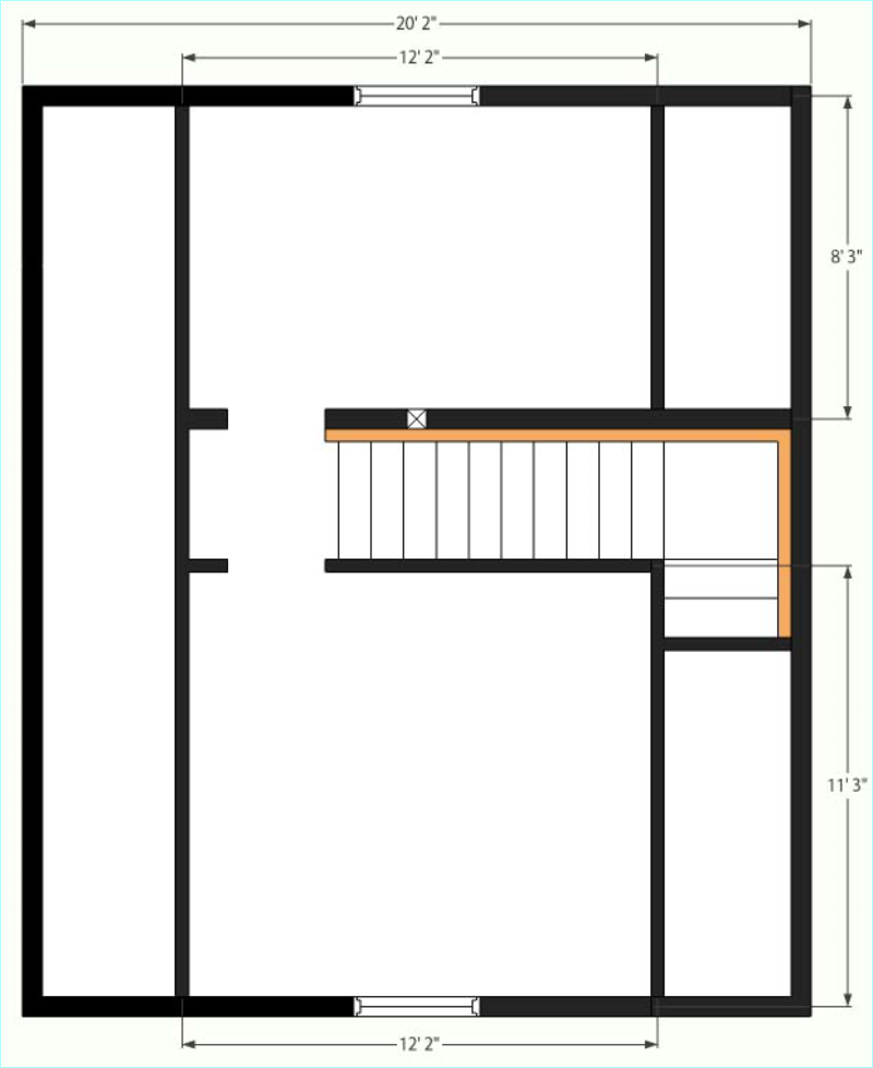
Option B 1000 sq ft