AW-16942277428 Ozark cabin kit 2800 sq ft

Ozark Cabin Kit

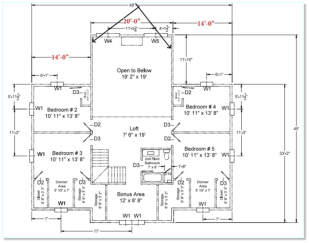
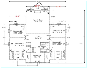
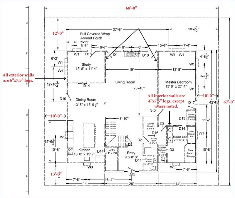
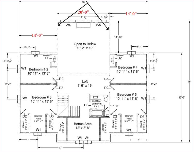
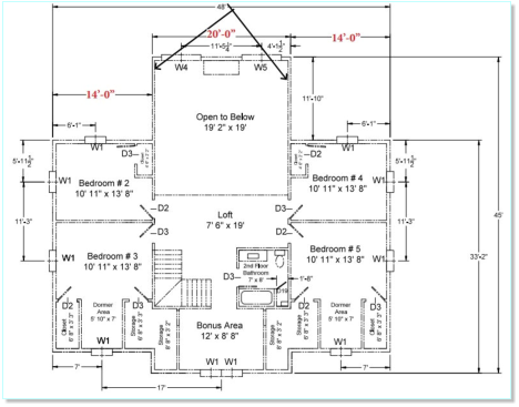
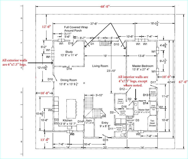
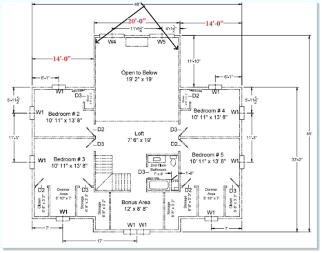
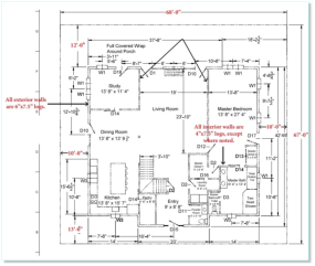
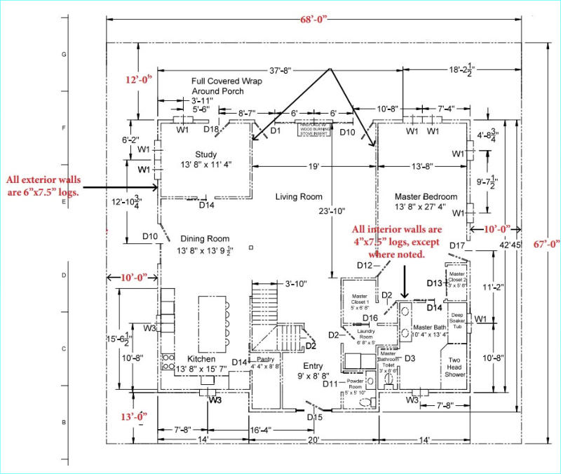
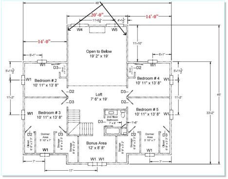
This cabin kit makes a great family home. With large bedrooms and 2 and a half baths this home is just right. The master bedroom is located on the first floor and has a separate deck. A unique touch in this home is the large balcony overlooking the living room. The large kitchen features a huge pantry and island. Dormers on the front of the house give a great detail, the porches provide a nice shady spot for year round porch sitting.
Schutt Log Homes & Mill Works      816-506-5713 Homestead cabin Kit Ozark cabin Kit Ozark cabin Kit
Schutt Log Homes & Mill Works

Option A

Homestead cabin Kit Ozark cabin Kit Ozark cabin Kit

Option B

Schutt Log Homes & Mill Works

Ozark Cabin Kit

This cabin kit makes a great family home. With 3 large bedrooms and 2 and a half baths this home is just right. The master bedroom is located on the first floor and has a separate deck. A unique touch in this home is the large balcony overlooking the living room. The large kitchen features a huge pantry and island. Dormers on the front of the house give a great detail, the porches provide a nice shady spot for year round porch sitting.
Schutt Log Homes & Mill Works      816-506-5713
Homestead cabin Kit Ozark cabin Kit Ozark cabin Kit

Option A

Homestead cabin Kit Ozark cabin Kit Ozark cabin Kit

Option B