AW-16942277428 Mountain View- 3100 sq ft
Schutt Log Homes & Mill Works      816-506-5713
Schutt Log Homes & Mill Works
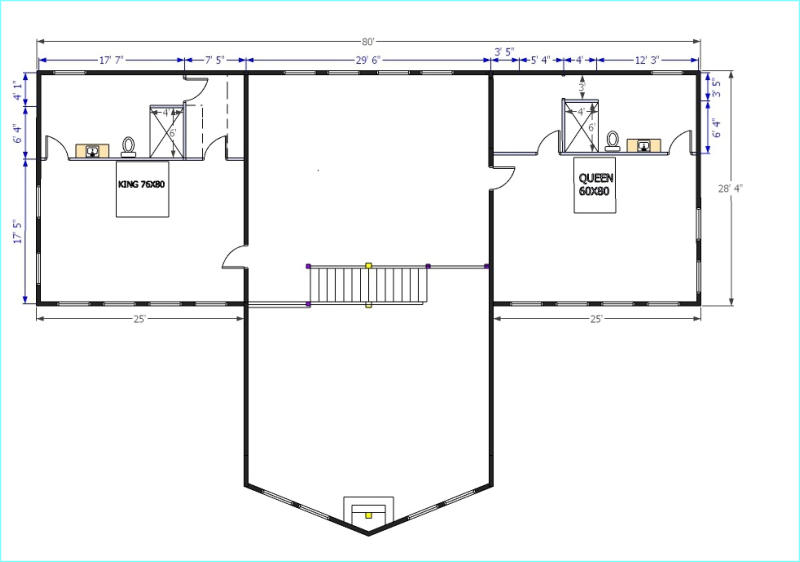
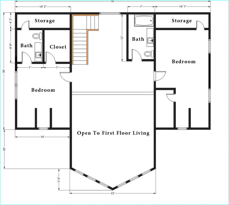
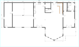
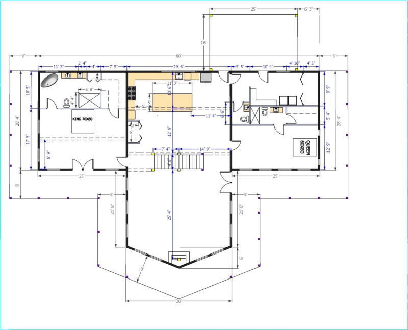
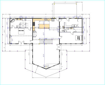
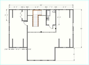
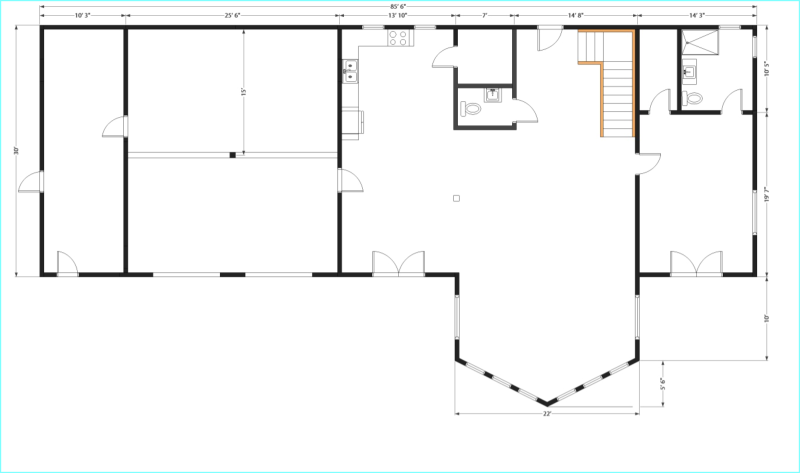
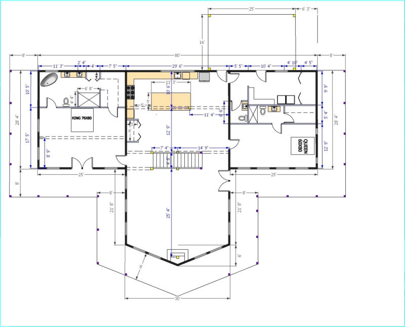
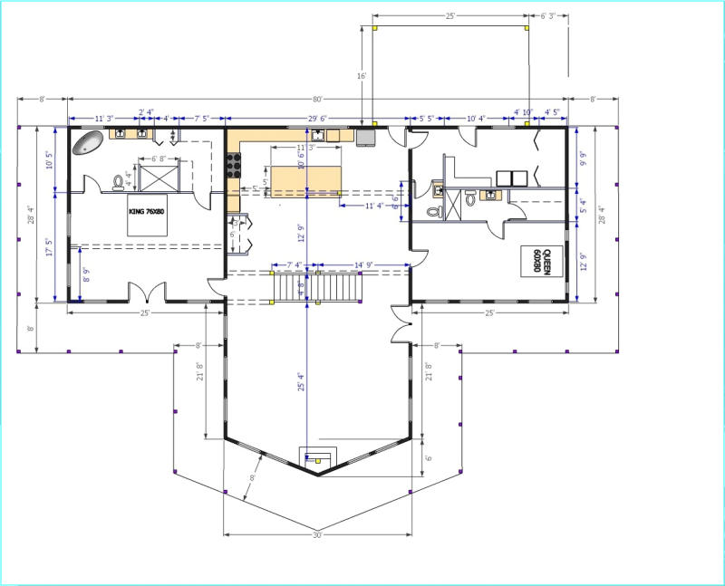
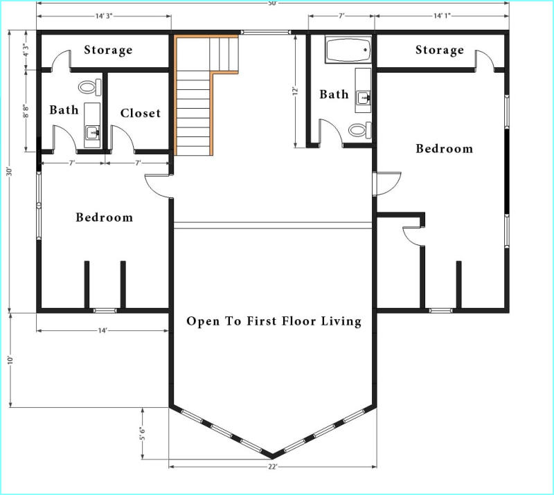
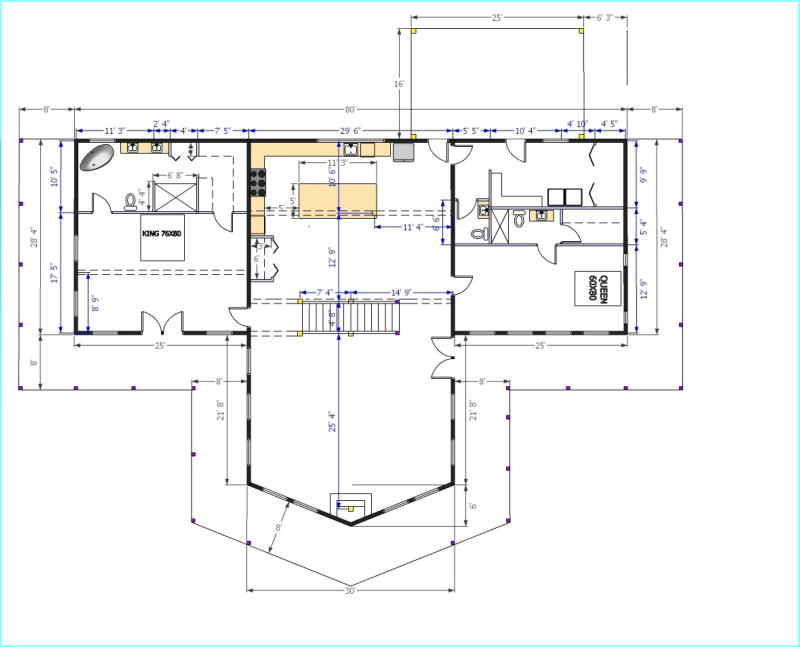
1 st Floor Plan - 3100 Sq ft Mountain View Kit 2nd Floor Plan - 3100 Sq ft Mountain View Kit

2200 Sq ft

3100 Sq ft

3100 Sq ft

3300 Sq ft

4000 Sq ft

4900 Sq ft

Mountain View

Welcome to the epitome of rustic elegance and modern comfort with our Mountain View Oak Log Cabin Kit. Nestled within this stunning log cabin, you'll discover a harmonious blend of natural beauty and exceptional craftsmanship, perfect for creating your dream retreat in the heart of nature. The open floor plan creates a seamless flow between the living, dining, and kitchen areas, making it perfect for entertaining or spending quality time with family. The high vaulted ceilings and exposed oak beams add a touch of rustic charm while enhancing the sense of space. Our kit offers a range of customizable options to suit your specific needs and preferences. Choose from various floor plans, room configurations, and additional features such as loft spaces, extended decks, and covered porches.
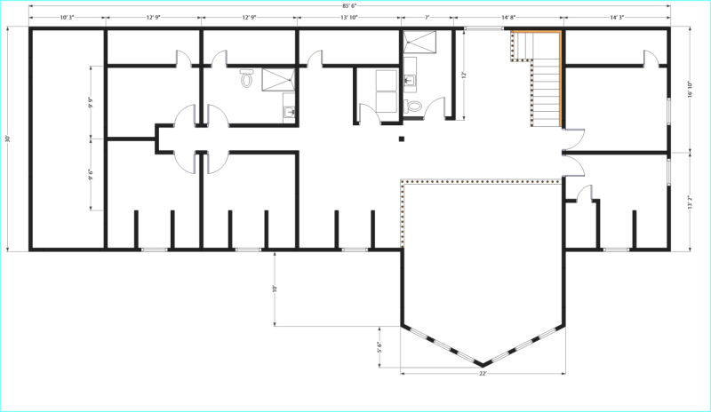
4000 Square Foot Mountain View
Schutt Log Homes & Mill Works
Schutt Log Homes & Mill Works      816-506-5713

Mountain View

Welcome to the epitome of rustic elegance and modern comfort with our Mountain View Oak Log Cabin Kit. Nestled within this stunning log cabin, you'll discover a harmonious blend of natural beauty and exceptional craftsmanship, perfect for creating your dream retreat in the heart of nature. The open floor plan creates a seamless flow between the living, dining, and kitchen areas, making it perfect for entertaining or spending quality time with family. The high vaulted ceilings and exposed oak beams add a touch of rustic charm while enhancing the sense of space. Our kit offers a range of customizable options to suit your specific needs and preferences. Choose from various floor plans, room configurations, and additional features such as loft spaces, extended decks, and covered porches.

2200 Sq ft

3100 Sq ft

3100 Sq ft

3300 Sq ft

4000 Sq ft

4900 Sq ft

3100 Square Foot Mountain View
4000 Square Foot Mountain View
1 st Floor Plan - 3100 Sq ft Mountain View Kit 2nd Floor Plan - 3100 Sq ft Mountain View Kit